2018-11-21 意俱小編
其實許多人都認為意大利家具之所以這么貴,是因為它的品牌效應。
比如LONGHI、FENDI等等奢侈品家具,他們本身的品牌已經享譽全球,但其實這并不是它的主要原因。

(意俱官網品牌列表,眾多品牌一應俱全)
那么多品牌,他們都有一個共性,純手工制作,每一個產品,都結合了設計師的設計的靈魂,不同流程工匠的心血等,正可謂每一個沙發、椅子、餐桌......都擁有著不同的“性格”!

這樣設計出來的家具,有著區別于工廠機器大批量制作的氣質,上等的材料,精致的外型,讓一整套家具擺放在那,那兒就是優雅與高級的結合地。
以下這一組圖片,攝于意俱辦公室,集結了來自意大利不同品牌的產品,LONGHI、FENDI、NATUZZI、MINOTTI......光從圖片就能感受到每一個家具散發出來的魅力!









不同品牌不同風格的家具,融合在一起竟然意外的和諧,它們填充了空間,也讓空間的每一個地方都不再突兀,一眼就能感受到的與眾不同,這就是意大利家具!
如果你還想親自體驗一下,歡迎來意俱做客,也可以參加11月22日在上海展覽中心舉辦的上海米蘭家具展,了解不同的品牌歷史!

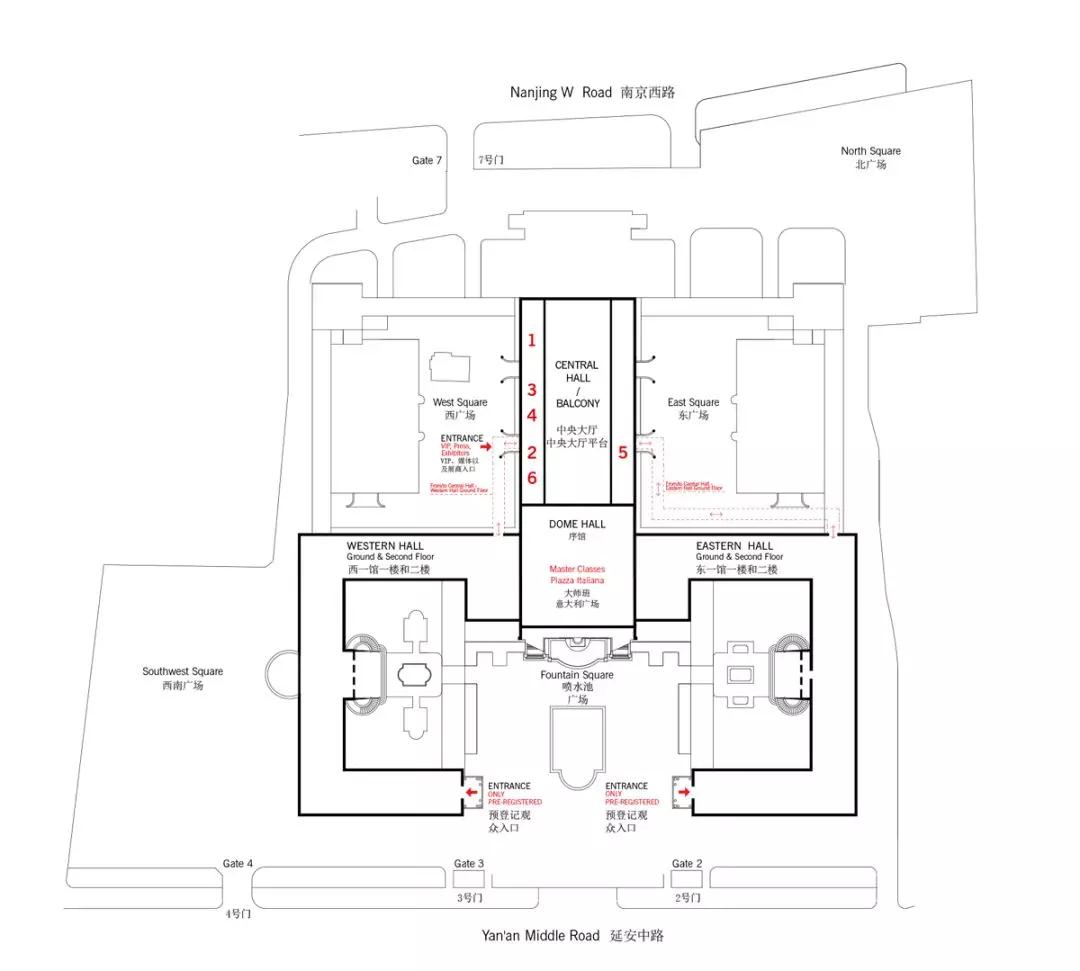
接下來,是上海米蘭家具展官網放出的123個品牌分布位置圖,方便您盡情參觀。
展會開放時間
11月22-24日 10:00-18:00
地點
上海展覽中心
觀眾入口
延安中路1000號上海展覽中心2、3號門
————————————
展會平面圖


序館&中央大廳二樓平臺


中央大廳一樓


東一館一樓


東一館 二樓


西一館 一樓


西一館 二樓


(以上家具分布圖均來自上海米蘭家具展官網)
距離上海米蘭展開展僅2天了,小意期待與您在上海相遇哦!
關注公眾號意俱home即可持續關注